Saltar al contenido

Arquitecta Carmen Gil Torres

Proyectos arquitectónicos de obra pública y privada, en Madrid y otras zonas de España.

  • Home
  • Trayectoria
  • Proyectos
  • Artículos y Prensa
  • Contacto

CSSMargarita-07-med

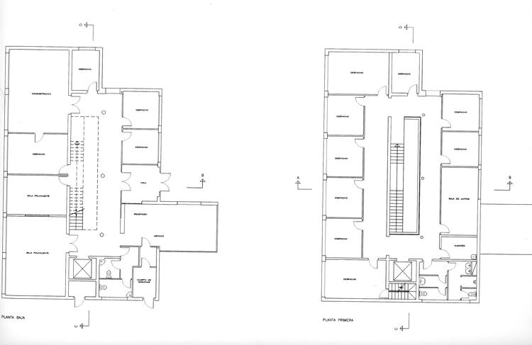
diciembre 11, 2018 Return to: Centro de servicios sociales Margarita de AustriaMáxima resolución (750 × 487)

Image navigation

Previous Image
Siguiente imagen

Búsqueda

Web construida con WordPress.com.
  • Comentar
  • Suscribirse Suscrito
    • Arquitecta Carmen Gil Torres
    • ¿Ya tienes una cuenta de WordPress.com? Inicia sesión.
    • Arquitecta Carmen Gil Torres
    • Suscribirse Suscrito
    • Regístrate
    • Iniciar sesión
    • Copiar enlace corto
    • Denunciar este contenido
    • Ver la entrada en el Lector
    • Gestionar las suscripciones
    • Contraer esta barra